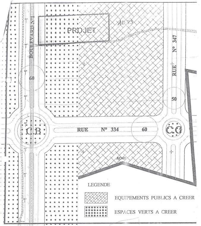
تبقى قضية الترخيص غير القانوني لمحطة الوقود بالبقعة ذات التحديد AD39 و الرسم العقاري 73/1423 بتصميم التهيئة الجديد للمدينة واضحة المعالم من الناحية القانونية و اكثر وضوحا من الناحية الواقعية ، لكن مهزلة مناورات حيكت ضد القانون من لدن رئيس المجلس البلدي الحالي و التي احاطت بجميع جوانبها و فضحت مرامي هذا المسؤول المتجلية في الدفاع المستميت عن صاحب المشروع الملغوم ضدا على القانون و عدم ضبطه المجال العمراني للمدينة و كأن القانون لا يسري على ولي نعمته المستفيد من قرض خيالي يقارب 1 مليار سنتيم من مؤسسة البنك الشعبي الجهوي لمراكش ، وكان طوع التدخلات على اكثر من مستوى لفائدة صاحب المشروع المفبرك قد ابرز خلافات حادة احيانا اصبحت تحكم علاقة المجلس الحضري لابن جرير و الوكالة الحضرية بخصوص انتهاك حرمة تصميم تهيئة المدينة ولم يحرك احد من المسؤولين على قطاع التعمير ساكنا خاصة بعد بداية الاشغال لبناء محطة الوقود هاته ذات الترخيص غير القانوني موضع مساحة خضراء كما هو مسطر بتصميم التهيئة و بقلب المدينة الخضراء –مدينة محمد السادس- المدينة بدون تلوث كما جاء في عرض الرئيس المدير العام للمجمع الشريف للفوسفاط امام انظار صاحب الجلالة عند عملية تدشين مشروع هذه المدينة ، و رغم بداية الاشغال بالبقعة المشار اليها بدون سند قانوني ظلت المصالح التقنية البلدية لا تنفي و لا تقر ان يكون هناك فعلا ترخيصا بالبقعة المذكورة ، حيث ان هذا اثار غضب مستشارين بالمجلس الحضري لابن جرير الذين طالبوا بالتدخل الفوري لوزارة الاسكان ، علما انه تم التعرض بشأن هذا الترخيص المفضوح لدى الوكالة الحضرية بكون الاشغال بإقامة محطة لتوزيع الوقود لا تزال جارية و بشكل يتنافى و تصميم التهيئة ، وان موضوع الترخيص هذا بالبقعة AD39 بالرسم العقاري 73/1423 بابن جرير بإقليم الرحامنة لا يستوفي الشروط القانونية و كل المساطر القانونية في مجال التعمير تم الضرب بها عرض الحائط من طرف رئيس المجلي الحضري و قد تسبب هذا التجاوز للقانون في خلق استياء عميق لدى عموم ساكنة هذه المدينة و خاصة من سبق لهم ان سجلوا تعرضا تهم و ملاحظاتهم بشأن مشروع تصميم التهيئة الجديد. و المثير للعجب و الاستغراب و لأ كثرمن علامة استفهام هو انه لا وجود لمنطقة سكنية او تجارية حتى من قبيل محطة للبنزين بتصميم التهيئة اطلاقا في خانة البقعة موضوع الترخيص المشؤوم و الذي يدخل في خانة المرافق العمومية.
فتبعا لبطاقة المعلومات الصادرة عن الوكالة الحضرية تحت عدد 12/0016 بتاريخ 09/02/2012 المتعلقة بالبقعة الارضية AD39 ذات الرسم العقاري 73/1423 موضوع الترخيص بإقامة محطة لتوزيع الوقود بابن جرير اقليم الرحامنة ، يتضح من خلال تصميم التهيئة للمدينة ان جزء من البقعة المذكورة يدخل ضمن مدار الطريق الوطنية الرئيسية الرابطة بين الدار البيضاء و مراكش ، وجزء اخر من البقعة يدخل ضمن المنطقة الخضراء ، اما ما تبقى من هذه البقعة فهو مخصص لمرافق عمومية حسب مرجع البقعة بتصميم التهيئة للمدينة AD39 رسم عقاري 73/1423 بابن جرير اقليم الرحامنة.
فبين هذا وذاك تضيع الحقيقة، الا ان الحقيقة الثابتة هو ان الترخيص بإقامة محطة للبنزين في النقطة AD39 ذات الرسم العقاري 73/1423 بابن جرير بتصميم التهيئة غير قانوني الامر الذي يتطلب الايقاف الفوري للأشغال مع اجراء تحقيق في الموضوع.
و امام هذه الحقائق المرة التي تشكل تجسيدا واضحا للاستهتار بالمسؤولية و للفساد الذي ينخر بعض مؤسساتنا تتبادر الى الدهن مجموعة من الاسئلة المشروعة من اهمها .
- من المسؤول عن كل هذه الاختلالات العميقة بالمجلس الحضري لابن جرير؟
- وهذا الفساد... من اين و الى اين؟
فتبعا لبطاقة المعلومات الصادرة عن الوكالة الحضرية تحت عدد 12/0016 بتاريخ 09/02/2012 المتعلقة بالبقعة الارضية AD39 ذات الرسم العقاري 73/1423 موضوع الترخيص بإقامة محطة لتوزيع الوقود بابن جرير اقليم الرحامنة ، يتضح من خلال تصميم التهيئة للمدينة ان جزء من البقعة المذكورة يدخل ضمن مدار الطريق الوطنية الرئيسية الرابطة بين الدار البيضاء و مراكش ، وجزء اخر من البقعة يدخل ضمن المنطقة الخضراء ، اما ما تبقى من هذه البقعة فهو مخصص لمرافق عمومية حسب مرجع البقعة بتصميم التهيئة للمدينة AD39 رسم عقاري 73/1423 بابن جرير اقليم الرحامنة.
فبين هذا وذاك تضيع الحقيقة، الا ان الحقيقة الثابتة هو ان الترخيص بإقامة محطة للبنزين في النقطة AD39 ذات الرسم العقاري 73/1423 بابن جرير بتصميم التهيئة غير قانوني الامر الذي يتطلب الايقاف الفوري للأشغال مع اجراء تحقيق في الموضوع.
و امام هذه الحقائق المرة التي تشكل تجسيدا واضحا للاستهتار بالمسؤولية و للفساد الذي ينخر بعض مؤسساتنا تتبادر الى الدهن مجموعة من الاسئلة المشروعة من اهمها .
- من المسؤول عن كل هذه الاختلالات العميقة بالمجلس الحضري لابن جرير؟
- وهذا الفساد... من اين و الى اين؟









